Chính chủ bán gấp căn hộ 1138 chung cư HH2B Linh Đàm





Đăng lúc: 

Chính chủ cần bán gấp chung cư HH2B Linh Đàm, Hà Nội, nhận nhà về ở ngay.
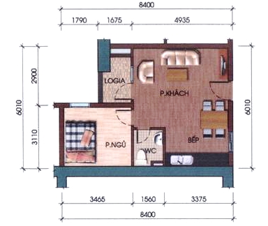
Căn hộ số 1138 diện tích 47m2, thiết kế gồm 1 phòng ngủ, 1 vệ sinh, 1 lô gia.
Giá 900 triệu mang về mọi thủ tục chuyển nhượng sang tên bên mua chịu.
Còn giá cuối của là 880 triệu (Giá này không thương lượng).

Liên hệ: A Quang 0982.304.766 (Miễn quảng cáo, trung gian).

//filevn.timdat.net/upload/anh-bat-dong-san/image/2017-04-20/chinh-chu-ban-gap-can-ho-1138-chung-cu-hh2b-linh-dam-0.jpg

//filevn.timdat.net/upload/anh-bat-dong-san/image/2017-04-20/chinh-chu-ban-gap-can-ho-1138-chung-cu-hh2b-linh-dam-1.jpg

Thông tin liên hệ







Nhu cầu mua bán và cho thuê nhà đất






WAP nha dat

Khởi Nghiệp

wap soi cau xo so

ibongdavn